
4 Axle Low Loader Feedback from Dominican Customer
4 Axle Low Loader Feedback from Dominican Customer. Dominican customer recently received a 4 axle low loader, and are full of praise.
Due to certain force majeure factors, the customer's 4 axle low loader trailer was parked in Tianjin parking lot for more than a month before boarding the ship, and then drifted for two months before arriving in Dominica. It was also parked at the port for two months before customs clearance.
After two months of drifting at sea and 2 months of parking at the beach, the customer received the 4 axle low loader paint intact. The customer said that it exceeded expectations and was very satisfied with this purchase.
TITAN all semi trailer have professional staff to make a package, all of them were trained constantly. Please notice that to prevent the low loader trailer paint from being corroded by seawater to we spray a layer of wax on the surface of the lowboy trailer before shipping. And covering poncho to prevent the damp condition.

Customers Feedback of 4 Axle Low Loader Price
There are two types of low loader for sale ramps, namely, a mechanical ramp and a hydraulic ramp.
Mechanical ramp: A manual mechanism or a spring is used to lift the ramp to the right height. Lowbed trailer for sale mechanical ramp is cheap and easy to maintain.
Hydraulic ramp: With this type of ramp, low loader for sale in kenya of hydraulic cylinder is used instead of a spring to lift the ramp. Tri axle low loader trailer hydraulic ramp is efficient and easy to use. You can move heavy cargo fast with a hydraulic ramp. However, the ramp is more expensive than a mechanical ramp.

Low loader Mechanical ramp VS Hydraulic ramp
In addition, customers are very fond of TITAN's production, and only a standardized and rigorous production process can ensure the quality.
Before production produce drawings according to the needs of the user and the market, so that the technical parameters of the main 4 axle low loaders are matched, and then transferred to the manufacturing department.
1. Submerged arc welding beams, beams fixed
The second step is to fix the cut web and the upper and lower wing plates to weld points, and then weld the beam by submerged arc welding.
2. Opening, calibration beam, through beam
First cut out the web of the beam to cut out U-shaped holes through which the beams can pass, and then fix the welded I-beams in parallel. The result of comparing the beams is very important. If two I-beams have large parallel errors, very serious tire wear will occur.

Factory show of 4 axle low loader for sale
3. Connect side beams, welding king pins
At this time, the 4 axle low bed trailer of the main beam is basically formed, only the side beams are welded to form the frame structure. And the traction pin traction plate is welded to the position required in the contract, the welding process is required to be high, otherwise, the lowbed truck trailer will be skewed.
4. Welding frame, welding suspension
At this time, the welding suspension must strictly control the size and maintain the squareness, otherwise it will cause 4 axle low loader for sale malaysia of tire wear. Low Loader Trailers use high-strength international steel material, the vehicle has a lightweight, and guarantees its anti-torsion, anti-vibration, anti-bump ability, and meets different load bearing capacity.
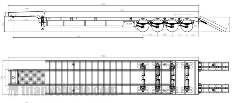
4 axle low loader drawing
Low Loaders are widely used, mainly for medium and long-distance freight transportation. Its frame is a beam-through structure, and the longitudinal beam adopts a straight and live gooseneck type. The height of the webs ranges from 400mm to 550mm, the longitudinal beams are welded by automatic submerged arc welding, the frame is shot blasted, and the beam penetrates the longitudinal beams and welds the whole.
When loading mechanical equipment on 4 axle low loader, the mechanical equipment is usually loaded from the rear of the semi-trailer, that is, the mechanical equipment is moved from the rear wheel frame or the wheels are removed, and then the mechanical equipment is fixed on the semi trailer.
You can download video, you can learn about different types of lowbed semi-trailers, like 2axle, 3axle, 4axle lowbed semi trailer, hydraulic ladder lowbed semi trailer, etc. As well as the process, testing, packaging and customer feedback, etc.
Welcome to download our quotation, if you have other questions, please contact us