
150 Ton Detachable Gooseneck Lowboy Trailer for Sale in Guinea
Some time ago, a Guinea customer customized a 4 line 8 axle 150 ton detachable gooseneck lowboy trailer. Most of the customers who buy detachable gooseneck trailer usually customize the three axle or four axle, but our semi trailers are customized, so customers can choose semi-trailers with different configurations and different parameters.
Since we seldom made the detachable gooseneck for 4 line 8 axle before, after discussing with the customer in detail this time, our factory also carefully studied the drawings of the detachable gooseneck trailer, and made this lowboy trailer according to the customer's needs.
Since we often receive orders for detachable gooseneck lowboy trailer, this trailer has also been made very successfully. After completing the vehicle and testing the vehicle, we immediately shared the pictures and videos of the vehicle with the customer. Recently, we are going to send it to Guinea. We hope that the customer can receive our 150 ton lowboy trailer smoothly.

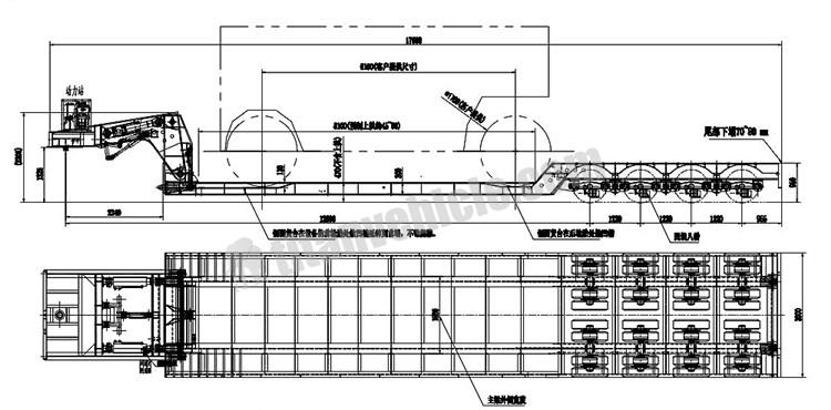
Drawing of 150 Ton Detachable Gooseneck Lowboy Trailer
When preparing to remove the gooseneck, you must first link the towing pin with the towing saddle. There are many types of detachable gooseneck lowboy trailer for sale. Most split gooseneck operating principles are the same.
1. Remove the positioning pin and the air pipe and wire connection.
2. As the gooseneck height decreases, the bottom angle of the front end of the 150 ton lowboy trailer lowers to the ground and rests on the ground. Once all the linkages have been safely removed, lower the cargo platform.
3. Drive the gooseneck with the truck and drive the tractor far enough away.
4. After driving off the truck, you can now load comfortably from the front of the detachable lowboy trailer platform.

Detachable Gooseneck Lowboy Trailer Feedback from Nigeria Customer
1. Strong carrying capacity
4 line 8 axle detachable gooseneck trailer main beam of TITAN is made of HG60 high-strength structural steel. The yield strength of HG60 steel is ≥ 620MPa, which is more durable and stronger than ordinary steel. Its bearing capacity is 5 times of that of Q345 steel trailer. TITAN mechanical detach lowboy gooseneck trailer for sale adopts reinforced the gooseneck and upper and lower plate by double layer.
2. Low center of gravity and good stability
Due to the low ground clearance and low longitudinal beam height of rgn trailer for sale, the load-bearing surface is 300-400mm lower than that of the normal concave-center detachable gooseneck trailer for sale, thereby effectively reducing the height of the center of gravity of the loaded goods and improving the stability during transportation.
TITAN detach gooseneck trailer for sale bottom plate, Other suppliers usually use 3 or 4 mm bottom plate, But TITAN mechanical detach lowboy equipment trailers adopt 5 mm thick bottom plate, It’s more durable and won’t be deformed.

Details of 150 Ton Detachable Gooseneck Lowboy Trailer for Sale
3. The effective length of the cargo bed is long
Because this type of model eliminates the rear ladder, the bearing surface can be lengthened, and because the construction machinery does not go from the rear, the slope angle in front of the bridge can be appropriately increased, so that the bearing surface can be lengthened. The length of the low flat cargo table with a ladder at the end is longer, which can effectively load more loads, indirectly improve the loading efficiency, and create greater benefits for users.
4. Easy operation
The lifting operation handle of the bearing surface mostly adopts the centralized electric control device, rather than the traditional handle to control the operation, so that the operation interface is more convenient.
TITAN hydraulic system has undergone five major system upgrades in the ten-year production process, and now the hydraulic system has very good stability and stability The customer only needs regular maintenance. It can be used for ten years.

Detachable Gooseneck Lowboy Trailer in Factory
You can download video, you can learn about different types of side wall semi trailers(like low bed gooseneck trailer , 60ton/80ton/100ton/120ton/150ton low bed gooseneck semi trailer , 80ton 3 axle low bed gooseneck trailer for sale). And the process, testing, packaging and customer feedback, etc.
This kind of semi trailer was designed with lots of advantages and features. If you want to get more information, welcome to leave a message in the board below